
Su richiesta del Servizio Edilizia per la Cultura del Comune di Milano si studiano le opere conservative della Cortina di S. Spirito nel Castello Sforzesco.
Si tratta di addizioni progettate da Luca Beltrami (Milano 1854-Roma 1933), realizzate fra il 1893 e il 1905 in occasione dei restauri al Castello Sforzesco. In particolare il corpo di fabbrica è addossato alle mura presso la Porta di S. Spirito. Di esso vengono esaminati i prospetti e la copertura.
Si elabora un’istruttoria di “conservazione del restauro” di uno dei padri del restauro in Italia, quale Luca Beltrami, personalità di eccezionale valore culturale. La sua metodologia di intervento sugli edifici storici è oggi definita come “restauro storico”: i cui esiti più eclatanti si riscontrano proprio sul Castello Sforzesco e su Palazzo Marino.
Gli studi progettuali coinvolgono gli allievi del corso di Restauro architettonico tenuto dal Prof. Giola al Politecnico di Milano.


Il monastero risale al 1468 e accoglie fra i priori il celebre miniaturista Alessandro da Sesto. Soppresso da Napoleone nel 1798, l’edificio viene acquistato dal Comune e destinato a sede municipale, biblioteca, auditorium.
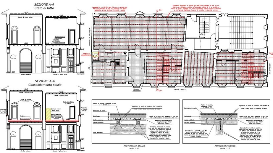
La progettazione del restauro e la direzione lavori, particolarmente complesse, su incarico dell’Amministrazione Comunale si estendono anche allo studio e ai disegni esecutivi degli arredi destinati al nuovo municipio.
Si tratta di un articolato approccio scientifico e progettuale: analisi chimiche e caratterizzazione delle malte storiche, analisi stratigrafiche, analisi mensiocronologiche, saggi archeologici.
L’intervento di consolidamento comprende, per la prima volta e in fase sperimentale, l’applicazione della tecnica “arco armato” elaborata da Prof. Lorenzo Jurina del Politecnico di Milano.
Gli studi progettuali coinvolgono gli allievi del corso di Restauro architettonico tenuto dal Prof. Giola al Politecnico di Milano.
L’intervento è oggetto di una tesi di laurea al Politecnico di Milano.
L’intervento è recensito sulla rivista “Progetto colore” n. 2, 2005, pp. 20-21: Tra innovazione e conservazione: Vittorio Giola, restauro ex Monastero.


Castiglione Olona, ricca di pregevoli architetture quattrocentesche con famosi affreschi di Masolino da Panicale, possiede anche una chiesa periferica meno conosciuta, risalente almeno al 1458, dedicata a San Pietro Martire. Su incarico del Parroco viene studiata e rilevata dettagliatamente per predisporre un progetto di restauro. Gli studi progettuali coinvolgono gli allievi del corso di Restauro architettonico tenuto dal Prof. Giola al Politecnico di Milano.


Progettato nel 1883 da Ing. A. Giardini e abbandonato nel 1950, su incarico dell’Amministrazione Comunale si elabora il progetto di restauro secondo un approccio archeologico. L’analisi del quadro fessurativo evidenzia problematiche complesse di cedimenti fondali differenziali e cinematismi rotazionali. Si progettano consolidamenti passivi (micropali e contrafforti) e attivi. Per il consolidamento della volta della Cappella Chaniac si utilizza una innovativa tecnica di messa in sicurezza mediante rete in fibra di carbonio estradossale. Particolarmente riuscita l’integrazione fra l’antico e il nuovo con l’inserimento di colonne di consolidamento attivo con capitello su manicotto regolabile dimamometricamente.
Gli studi progettuali coinvolgono gli allievi del corso di Restauro architettonico tenuto dal Prof. Giola al Politecnico di Milano.
L’intervento è oggetto di una tesi di laurea al Politecnico di Milano.

La storia di Nerviano è strettamente legata a Palazzo Crivelli ove soggiornò anche San Carlo Borromeo. Ugolino Crivelli fondò il Monastero Olivetano in Nerviano nel 1468.
Il progetto di restauro e la direzione lavori, per incarico di privati, comprendono soluzioni innovative e in alcuni casi sperimentali, sia per il consolidamento strutturale, sia per il rapporto tra preesistenze e nuovi impianti. Nella corte signorile restaurata si tengono concerti estivi.
Il palazzo e il cantiere di restauro vengono analizzati come caso di studio dagli allievi architetti della cattedra di restauro del Prof. Vittorio Giola al Politecnico di Milano.


La progettazione degli interni di uno studio professionale, condotta in concomitanza al restauro di una villa di metà novecento, già progettata da Arch. Antonio Cassi Ramelli, docente emerito al Politecnico di Milano, è l’occasione per sperimentare soluzioni inedite di consolidamento attivo con colonne cinquecentesche e di adeguamenti impiantistici totalmente reversibili, specificamente studiati e messi a punto per il restauro.


La direzione lavori e il consuntivo scientifico per il restauro del monumentale Organo Carrera (1875) della Prepositurale di Santo Stefano in Nerviano, vincolato dal Ministero dei beni culturali, si concludono con il concerto inaugurale e con il libro di Vittorio Giola pubblicato da Zecchini Editore.
L’intervento è oggetto di tesi di laurea all’Università degli Studi dell’Insubria, relatore Prof. V. Giola.
Il libro è recensito sulla rivista “Musica” n. 203, 2009, p. 14.


È un bellissimo oratorio campestre dedicato all'Annunciata, a pianta circolare, progettato da Giuseppe Quadrio nel 1680 e realizzato nel 1696 a protezione di una preesistente edicola con affresco cinquecentesco nello stile del Bergognone.
Il progetto di restauro, eseguito in più fasi, riguarda la conservazione delle figure di santi a rilievo in stucco di Matteo Trecino (1704) e della decorazione ad affresco dell’abside di Agrati e Bellotti (1752), la valorizzazione con nuovo impianto di illuminazione interno ed esterno, il consolidamento del tirante ad anello della cupola.


L’attività progettuale e di direzione lavori, svolta nell'arco di alcuni anni sul cimitero nuovo su incarico dell'Amministrazione Comunale, si estende dal piano regolatore cimiteriale a interventi di restauro del portale di ingresso, ampliamento dei colombari, nuovo ingresso al camposanto, cappella ossari con cupola in cristallo, opere di miglioramento dell’accessibilità con solette speciali e ascensore, scale elicoidali con balaustra in cristallo, meridiana, fregi decorativi a bassorilievo su temi sacri. Gli studi progettuali si spingono all’area esterna per la formazione di un parco urbano.


La cascina, interessante bene privato nel milanese, risale almeno al 1722 (è rappresentata nelle mappe levate da Geom. Domenico Schiera per il settecentesco Catasto teresiano geometrico particellare a base peritale) e contiene colonne e capitelli di epoca antecedente, provenienti da edificio più antico. L’analisi sui sottotetti rivela due fasi costruttive. Di rilevante interesse le volte ribassate di mattoni “in foglio” il cui consolidamento ha richiesto calcoli accurati.
Il restauro ha messo in evidenza i paramenti murari in mattoni e ciottoli. Il consolidamento di una muratura manifestante quadro fessurativo da schiacciamento è stato eseguito con piastre e tiranti passanti, messi in tensione con chiave dinamometrica.


Luigi Morgari, valente pittore piemontese, eseguì nel 1925 dipinti murali a mezzo fresco nella Prepositurale di Nerviano. Il progetto di restauro e la direzione lavori contribuiscono alla maggior conoscenza delle tecniche pittoriche del Morgari, alla catalogazione delle sue opere e a discernere alcuni problemi specifici di conservazione della tecnica del mezzo fresco.

Una villa privata nel milanese viene progettata su un lotto interessato da fascia di rispetto di elettrodotto, trasformando in risorsa architettonica il limite di forma imposto. Il contesto favorisce riferimenti a cifre stilistiche delle cascine lombarde.


Uno dei più interessanti edifici del Liberty lombardo viene rilevato e studiato nel parabiaghese. Erroneamente attribuito all’Arch. Silvio Gambini da Rossana Bossaglia, gli studi effettuati comportano la corretta riattribuzione all’Arch. Enrico Zanoni, protagonista ancora poco noto del modernismo milanese. Gli studi progettuali coinvolgono gli allievi del corso di Restauro architettonico tenuto dal Prof. Giola al Politecnico di Milano. Viene effettuato anche un campionamento dei cementi decorativi che, sottoposti ad analisi termiche differenziali, termogravimetriche e ai raggi X, rivelano importanti informazioni utilizzate da Vittorio Giola per pubblicazioni sui cementi decorativi.


Su incarico della multinazionale Italcementi SpA si progettano e si dirigono i lavori per molti siti produttivi, fra cui alcuni molto complessi per la linea ferroviaria Alta velocità Milano-Torino e per il nuovo Palazzo della Regione Lombardia a Milano. Altri impianti in Arese, Casorezzo, Linate, Lonate Pozzolo, Parona, Pioltello, Rho, Romentino.